BIC+GWZ

Neubau eines Technologie- und Gewerbezentrums

Standort:  Leipzig, Plagwitz
Auftraggeber: Leipziger Gewerbehofgesellschaft
Jahr: 1997-2000
Leistungen: Bauleitung, Mieterausbau
Partner: A.Comtesse, IWP, IB Haufe

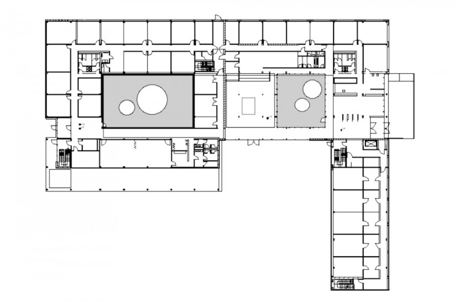
Nach dem Wettbewerbsgewinn wurde das Projekt in einem alten Leipziger Industriegebiet auf einer innerstädtischen Brachefläche realisiert. Es entstanden Gewerberäume und Büroräume für junge Firmen mit unterschiedlichsten Anforderungen (Produktion, Labore, Forschung, etc.). Im Rahmen des Bauvorhabens wurde der Gesamtraum neu strukturiert, Freiflächen extensiv beplant und ein Parkhaus errichtet.
Hinter der Fassade eines alten Industriebaues entstand ein neuer Stahlbetonfertigteilbau für gewerbliche Nutzungen. Neben hoch belastbaren Decken und Lastenaufzügen wurde vor allem auf flexibel teilbare Einheiten Wert gelegt. Für Firmen mit unterschiedlichsten Anforderungen (Druckerei, Biotechnologie, Archivierung, Elektronische Bauelemente, etc.) wurden die Räume optimal auf die spezifischen Bedingungen angepasst und ausgebaut.