TYPEN

Energetische Sanierung von Typenkindergärten

Standort: Leipzig, Tarostraße 7/9 und 17/19 und Kurt-Tucholskystraße 10/12
Auftraggeber: Stadt Leipzig
Jahr: 2010-2011
Leistungen: Planung + Bauleitung

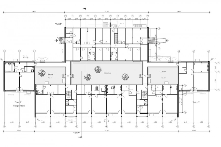
Drei  Kindergartentypenbauten wurden im Rahmen des Konjunkturpaketes energetisch saniert, die Fassaden und Dächer ertüchtigt. Dabei wurden die klaren Grundzüge der Bestandsbauten aufgenommen und weiterentwickelt. In Teilbereichen wurden neue Außentreppen und behindertengerechte Rampen gebaut, sowie neue Vordächer errichtet. Die strengen Grundkörper, mit einer einheitlichen farbigen Fassung, werden durch die Höfe, farbige Fensterpaneele und eine helle Gartenfassade kontrastiert. Die Eingangssituationen unterscheiden sich durch ihre verschiedenen Farbakzente.