MILTITZ

GRUNDSCHULE MILTITZ

Standort: Leipzig-Miltitz
Auftraggeber: Stadt Leipzig
Jahr: 2023
Leistungen: Verhandlungsverfahren

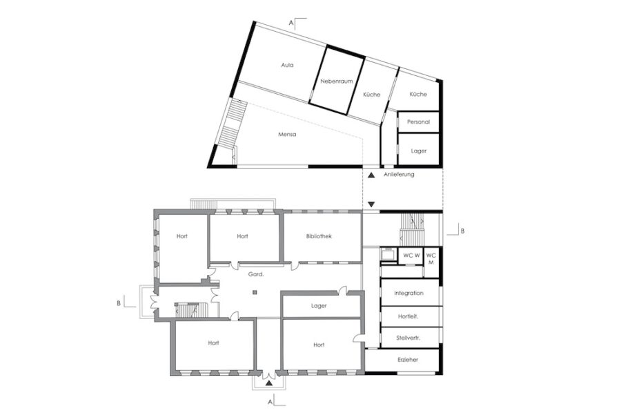
In vorstädtischer Lage soll die vorhandene Schule mit Hort, Aula und Mensa erweitert werden. Die Kubatur der Erweiterung fügt sich respektvoll in die dörfliche Bebauung ein. Gleichzeitig wird durch mit dem Neubau die Erschließung sinnvoll und barrierfrei ergänzt.