WILHELM BUSCH

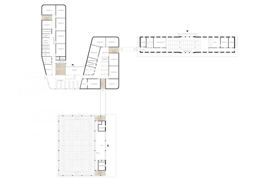
Neubau eine Grundschule mit Sporthalle und KITA

Standort: Leipzig, Gerichtsweg
Auftraggeber: Stadt Leipzig
Kooperation: mit Eßmann Gärtner Nieper Architekten und Spiel.Raum.Planung
Jahr: 2019
Leistungen: Konzept im VGV-Verfahren 2.Rang

Im Bereich des ehemaligen Eilenburger Bahnhofes wird eine neue Grundschule mit Hort, eine KITA und eine Doppelsporthalle geplant. Der Park wir bis zum Gerichtsweg vervollständigt, die zarte Sporthalle mit gläsernem EG wird Teil des Parkes. Schule, Mensa und KITA bilden ein Ensemble im Norden und nehmen die Materialität der alten Empfangshalle auf.